150-Umbau Recklinghausen - Architekturbüro Liersch Architekt Recklinghausen, Marl, Herten, Haltern, Datteln, Gelsenkirchen, Herne, Bochum, Duisburg, Krefeld, Dorsten

Direkt zum Seiteninhalt

P R O J E K T  |  1 5 0
Umbau und Umnutzung eines Ladenlokals in Recklinghausen

< zurück

Informationen:

Komplexer Umbau im Bestand
Umnutzung von Gewerbefläche in Wohnfläche

Raumhöhe bis zu 4.40m
Umbaufläche:
~130 m²
Zwischenebene:
~ 10m²

Fläche Loft 1
ca. 45 m²

Fläche Loft 2
ca. 95 m²

geplante Fertigstellung: 2012

Entwurf / Planung:
Dipl.-Ing.
(FH) Architekt
Nico Liersch

L  O F T  |  1  |   -  2 0 1 1
Foto vor der Baumaßnahme

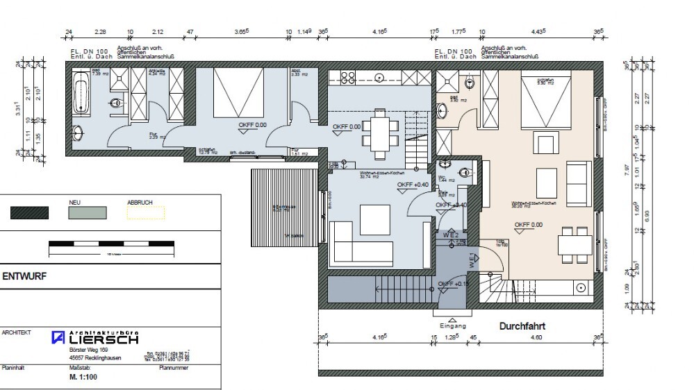
P l a n u n g  2 0 1 1
Visualisierung der Baumaßnahme

L  O F T  |  2  |    - Entwurfsvarianten -
Lichtsimulation

< zurück

L  O F T  |  2  |   -  2 0 1 1
Foto vor der Baumaßnahme

P l a n u n g  2 0 1 1
Visualisierung der Baumaßnahme

< zurück

Zurück zum Seiteninhalt